MORES 
TOWN

分譲地情報

MORES宝塚市安倉中5丁目Ⅱ

安倉中5丁目に暮らす。

穏やかな暮らしと利便性が調和する『安倉中5丁目』。
安倉幼稚園や校区の安倉北小学校・安倉中学校が近くに揃い、
天王寺川沿いの遊歩道や下の池公園など、緑と触れ合えるスポットも多くお子様のいるご家庭にもおすすめの立地です。
生活利便施設も充実しており、安心で快適な暮らしを叶えます。

区画図 LAND PLAN

  • 価格未定

    1号地

  • 価格未定

    2号地

プラン PLAN

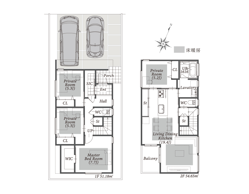
1号地

1F床面積

51.18㎡

2F床面積

54.65㎡

延床面積

105.83㎡

新築一戸建価格

-

万円

(税 込)

※新築戸建分譲予定

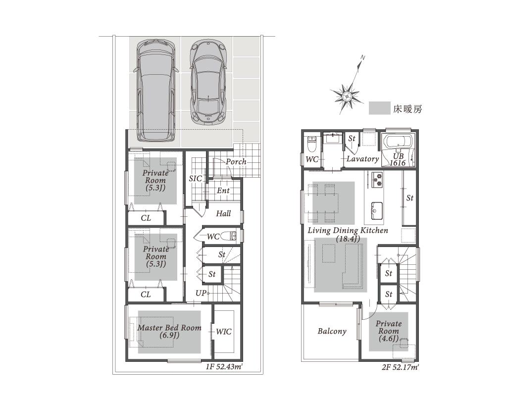
2号地

1F床面積

52.43㎡

2F床面積

52.17㎡

延床面積

104.6㎡

新築一戸建価格

-

万円

(税 込)

※新築戸建分譲予定

周辺環境 LOCATION

  • 阪急バス「安倉中三丁目」バス停
    約500m 徒歩約7分

  • 伊丹市バス「桑田」バス停
    約700m 徒歩約9分

  • JR宝塚線「中山寺」駅
    約1600m 徒歩約20分

  • 安倉幼稚園
    約450m 徒歩約6分

  • 安倉北小学校
    約750m 徒歩約10分

  • 安倉中学校
    約400m 徒歩約5分

  • ファミリーマート安倉中店
    約73m 徒歩約1分

  • 西松屋伊丹荒牧店
    約700m 徒歩約9分

  • ミリオンタウン伊丹荒牧
    約750m 徒歩約10分

  • みやそう病院
    約1000m 徒歩約13分

  • みなとクリニック宝塚
    約1000m 徒歩約13分

  • 宝塚市立病院
    約1200m 徒歩約15分

物件概要 OUTLINE

名称 MORES宝塚市安倉中5丁目Ⅱプロジェクト
所在地 宝塚市安倉中5丁目4-17(旧住居表示)
交通 阪急バス 「安倉中三丁目」バス停 徒歩約 7分
伊丹市バス 「桑田」バス停 徒歩約 9分
敷地面積 112.28㎡〜
私道負担 なし
道路幅員 北側 約5.5m
用途地域 第一種中高層住居専用地域
建ぺい率 60%
容積率 200%
総区画数 全4区画
仲介 株式会社モレス・リアルティ
TEL 0120-880-084

周辺の分譲地

CONTACT お問い合わせ

お電話でのお問い合わせ
(10:00~18:00)※火・水定休

0798-26-0100