MORES 
TOWN

分譲地情報

MORES西宮市新甲陽町Ⅲ

新甲陽町に暮らす。

高級住宅街として知られる西宮七園のひとつ「甲陽園」に位置する『新甲陽町』。
街路樹や生垣が豊かに整備されており、陽当たりも良く長閑な住環境です。
野鳥も訪れる自然豊かな大池公園では、散策を楽しんだり、お散歩やジョギングに最適なスポット♪
また、スーパーや病院も近くに揃っており暮らしやすい街並みとなっております。

区画図 LAND PLAN

全2区画

  • 価格未定

    1号地
    新築一戸建価格

  • 価格未定

    2号地
    新築一戸建価格

プラン PLAN

1号地 / 新築一戸建プラン

1F床面積

63.34㎡

2F床面積

59.20㎡

延床面積

122.54㎡

新築一戸建価格

-

万円

(税 込)

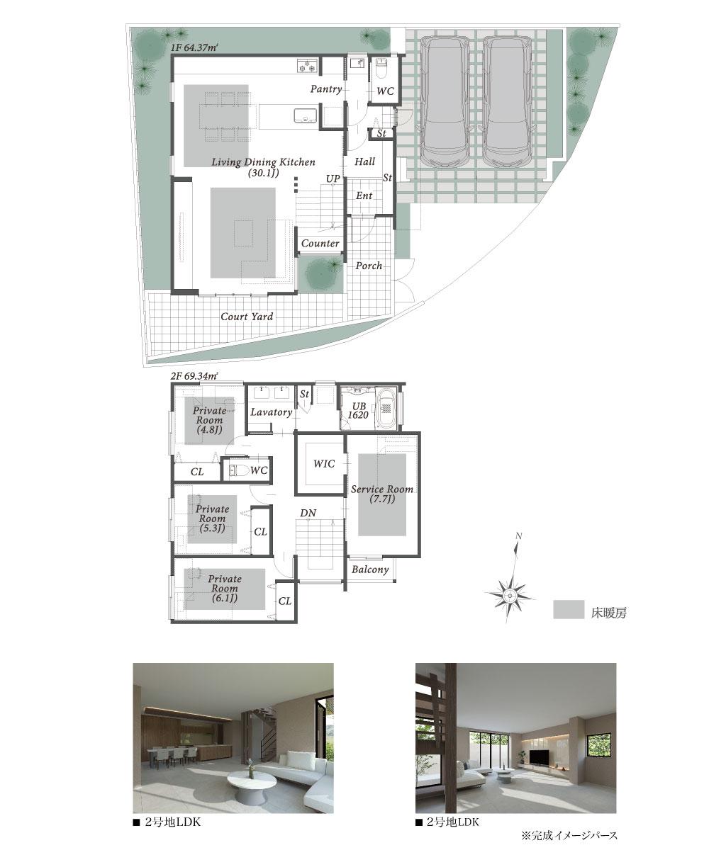
2号地 / 新築一戸建プラン

1F床面積

64.37㎡

2F床面積

69.34㎡

延床面積

133.71㎡

新築一戸建価格

-

万円

(税 込)

周辺環境 LOCATION

  • 阪急甲陽線「甲陽園」駅
    約1000m 徒歩約13分

  • 阪神バス「新甲陽口」
    約400m 徒歩約5分

  • 大池公園
    約800m 徒歩約10分

  • 甲陽幼稚園
    約850m 徒歩約11分

  • 甲陽園小学校
    約700m 徒歩約9分

  • 上ヶ原中学校
    約1000m 徒歩約13分

  • コープこうべ甲陽園店
    約240m 徒歩約3分

  • セブンイレブン上ヶ原十番町店
    約550m 徒歩約7分

  • いかり甲陽園店
    約1000m 徒歩約13分

  • 米澤歯科
    約280m 徒歩約4分

  • やまだ小児科
    約600m 徒歩約8分

  • 上ヶ原病院
    約1000m 徒歩約13分

物件概要 OUTLINE

名称 MORES西宮市新甲陽町Ⅲプロジェクト
所在地 西宮市新甲陽町9-1(旧住居表示)
交通 阪急甲陽線 「甲陽園」駅 徒歩約 13分
阪神バス 「新甲陽口」バス停 徒歩約 5分
敷地面積 158.65㎡〜
私道負担 なし
道路幅員 南側 約9.8m 東側 約9.9m
用途地域 第一種低層住居専用地域
建ぺい率 40%
容積率 100%
総区画数 全2区画
仲介 株式会社モレス・リアルティ
TEL 0120-880-084

周辺の分譲地

CONTACT お問い合わせ

お電話でのお問い合わせ
(10:00~18:00)※火・水定休

0798-26-0100