MORES 
TOWN

分譲地情報

MORES池田市井口堂3丁目

池田市井口堂に暮らす。

完成内覧会予約受付スタート!
箕面川が近く、のどかな住宅街の『井口堂3丁目』。
小・中学校や、生活に必要な施設が近くに揃っており暮らしやすい住環境が魅力的。
最寄り駅の阪急「石橋阪大前」駅は、梅田・宝塚・箕面方面にアクセス可能で
駅前には多種多様なお店でにぎわう石橋商店街がありお買物もスムーズです。

区画図 LAND PLAN

全3区画

  • -

    1号地
    土地価格

プラン PLAN

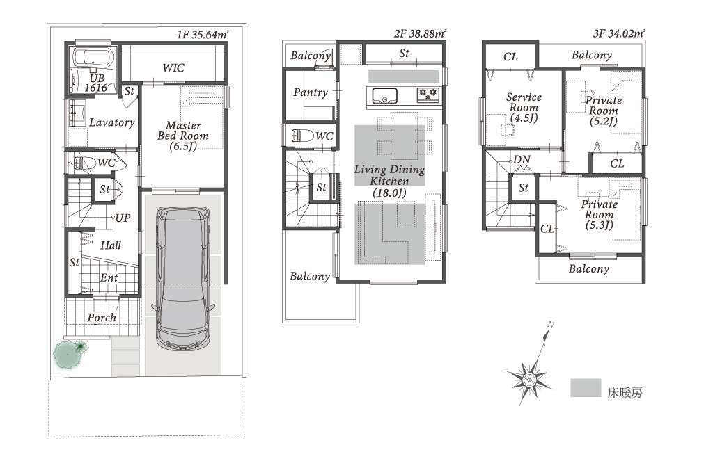
1号地プラン / 新築一戸建

1F床面積

35.64㎡

2F床面積

38.88㎡

3F床面積

34.02㎡

延床面積

108.54㎡

新築一戸建価格

4,580

万円

(税 込)

周辺環境 LOCATION

  • 阪急宝塚本線・阪急箕面線 「石橋阪大前」駅
    約650m 徒歩約9分

  • 水月公園
    約700m 徒歩約9分

  • 池田市民文化会館
    約900m 徒歩約12分

  • 石橋文化幼稚園
    約600m 徒歩約8分

  • 石橋小学校
    約85m 徒歩約2分

  • 石橋中学校
    約350m 徒歩約5分

  • コープミニ 井口堂
    約180m 徒歩約3分

  • 石橋商店街
    約550m 徒歩約7分

  • 阪急オアシス 石橋店
    約750m 徒歩約10分

物件概要 OUTLINE

名称 MORES池田市井口堂3丁目プロジェクト
所在地 大阪府池田市井口堂3丁目9-17(旧住居表示)
交通 阪急宝塚本線・阪急箕面線 「石橋阪大前」駅 徒歩約 9分
敷地面積 78.46㎡
私道負担 あり
道路幅員 南側 約4.0m
用途地域 第一種中高層住居専用地域
建ぺい率 60%
容積率 200%
総区画数 全3区画
仲介 株式会社モレス・リアルティ
TEL 0120-880-084

周辺の分譲地

CONTACT お問い合わせ

お電話でのお問い合わせ
(10:00~18:00)※火・水定休

0798-26-0100